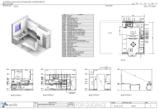
ADL Kitchen

ADLK

Revision: 
4.0
Date published: 
27/04/2021

The ADL Kitchen provides an accessible space for the training and assessment of patients in Activities of Daily Living (ADL) tasks.

The space is to be functional for a range of patients including wheelchair users. The kitchen can include a combination of fittings and appliances such as a sink, cooktop, oven/grill, microwave and refrigerator to support common ADL training and assessment tasks as per service requirements. Room exhaust to be provided to range hood over cooktop.

Additional Considerations:

  • An operational model for responding to calls from staff/patients will be needed to support the inclusion of a nurse call system and is to be determined based on service requirements. If multiple ADL rooms are combined into an ADL suite nurse call buttons can be rationalised into a central location.
  • The room may be enclosed with a lockable door depending on security requirements.
  • External outlook and access to natural light is desirable.

Room Data Sheet

Downloads
Room Data Sheet
Revision: 4.0
27/04/2021
PDF

Room Layout Sheet

Downloads
Room Layout Sheet
Revision: 4.0
27/04/2021
PDF

Project Resources

 

Archive

Find past versions of documents here

Downloads
Room Data Sheet
Revision: 3.0
20/03/2017
PDF
Room Layout Sheet
Revision: 3.0
20/03/2017
pdf
Room Data Sheet
Revision: 2.0
01/03/2016
PDF
Room Layout Sheet
Revision: 2.0
01/03/2016
pdf
Room Data Sheet
Revision: 1.0
04/08/2005
PDF
Room Layout Sheet
Revision: 1.0
13/07/2005
pdf

Retired Standard Components

Retired Standard Components

Webpage